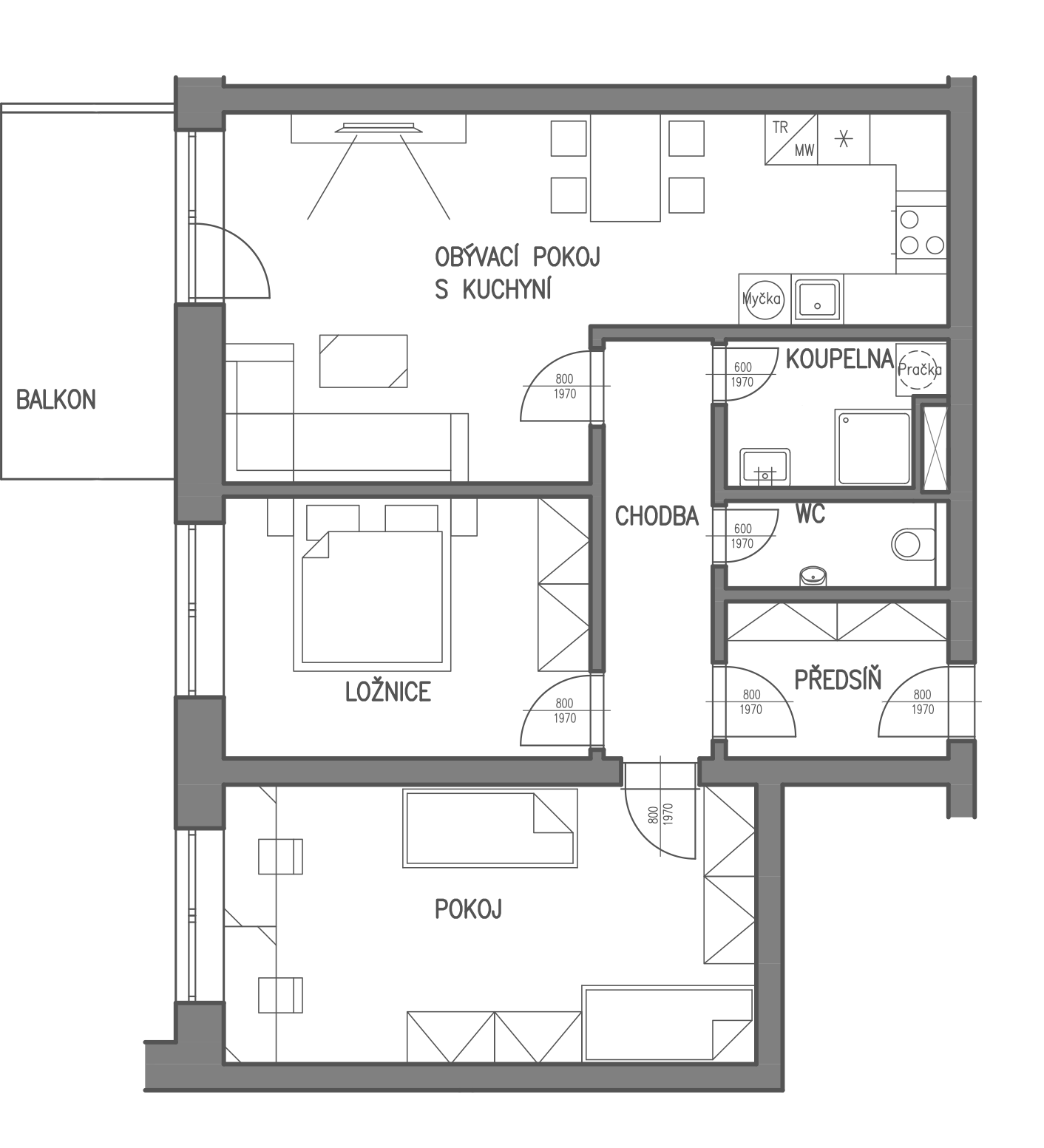
A - Byt 3.02

Prodáno
3+kk, dům A
Patro
3.NP
Dispozice
3+kk
Podlahová plocha bytu
77,13 m2
Celková prodejní plocha
89,01 m2
Orientace
VÝCHOD
Stav
Prodáno
Cena (včetně DPH)
Cena na vyžádání
Legenda místností
Chodba
10,86 m2
Obývací pokoj s kuchyní
27,9 m2
Koupelna
4,06 m2
WC
2,28 m2
Pokoj 1
19,52 m2
Ložnice
12,51 m2
Terasa
8,4 m2
Kóje
3,48 m2
nabidka-nemovitosti/dum-a
Moderní bydlení s luxusem

Zhluboka se nadechněte, jste v Beskydech

Kopce všude, kam jen dohlédnete. V Jablůnce najdete vytoužený klid od městského shonu. Ve vesnici obstaráte to nejnutnější: má poštu, školu, školku, lékárnu i obchod. A zbytek seženete ve Valašském Meziříčí nebo na Vsetíně – každé sice jiným směrem, ale vždycky do deseti minut cesty autem.

nabidka-nemovitosti/vyber-domu
Spojení elegance a klidu

Než se zabydlíte v Jablůnce

Bydlení natrvalo, nebo předchodné útočište na pravidelné výletění? Vyberte si dispozici, která vám bude nejlépe vyhovovat: 1+kk, 2+kk, 3+kk, nebo snad 4kk? Každý dům má navíc balkon nebo pořádně velkou terasu. A přízemní byty mají dokonce předzahrádky. No jen si tu představte ta pohodová odpoledne s knížkou nebo veselé rodinné grilovačky.

Bydlení v Beskydech si zamilujete. 
Rezervujte si svůj byt zavčas

Kontaktujte nás

Filip Hladiš
prodejce projektu
filip.hladis@explicitreality.cz +420 774 110 397
Odesláním formuláře souhlasíte se zpracováním osobních údajů.