B - Byt 2.01

Volné
1+kk, dům B
Patro
2.NP
Dispozice
1+kk
Podlahová plocha bytu
41,34 m2
Celková prodejní plocha
54,02 m2
Orientace
SEVEROVÝCHOD
Stav
Volné
Cena (včetně DPH)
3 530 000Kč
Sjednejte si financování od nás a získejte tento byt již od 15 430 Kč / měsíčně
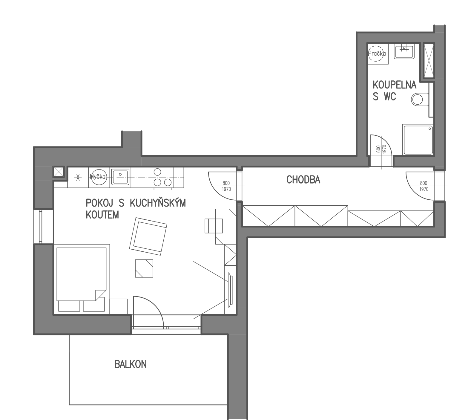
Legenda místností
Chodba
8,76 m2
Obývací pokoj s kuchyní
27,27 m2
Koupelna + WC
5,31 m2
Terasa
9,2 m2
Kóje
3,48 m2
nabidka-nemovitosti/budova-b
Moderní bydlení s luxusem

Zhluboka se nadechněte, jste v Beskydech

Kopce všude, kam jen dohlédnete. V Jablůnce najdete vytoužený klid od městského shonu. Ve vesnici obstaráte to nejnutnější: má poštu, školu, školku, lékárnu i obchod. A zbytek seženete ve Valašském Meziříčí nebo na Vsetíně – každé sice jiným směrem, ale vždycky do deseti minut cesty autem.

nabidka-nemovitosti/test-2
Spojení elegance a klidu

Než se zabydlíte v Jablůnce

Bydlení natrvalo, nebo předchodné útočište na pravidelné výletění? Vyberte si dispozici, která vám bude nejlépe vyhovovat: 1+kk, 2+kk, 3+kk, nebo snad 4kk? Každý dům má navíc balkon nebo pořádně velkou terasu. A přízemní byty mají dokonce předzahrádky. No jen si tu představte ta pohodová odpoledne s knížkou nebo veselé rodinné grilovačky.

Bydlení v Beskydech si zamilujete. 
Rezervujte si svůj byt zavčas

Kontaktujte nás

Filip Hladiš
prodejce projektu
filip.hladis@explicitreality.cz +420 774 110 397
Odesláním formuláře souhlasíte se zpracováním osobních údajů.