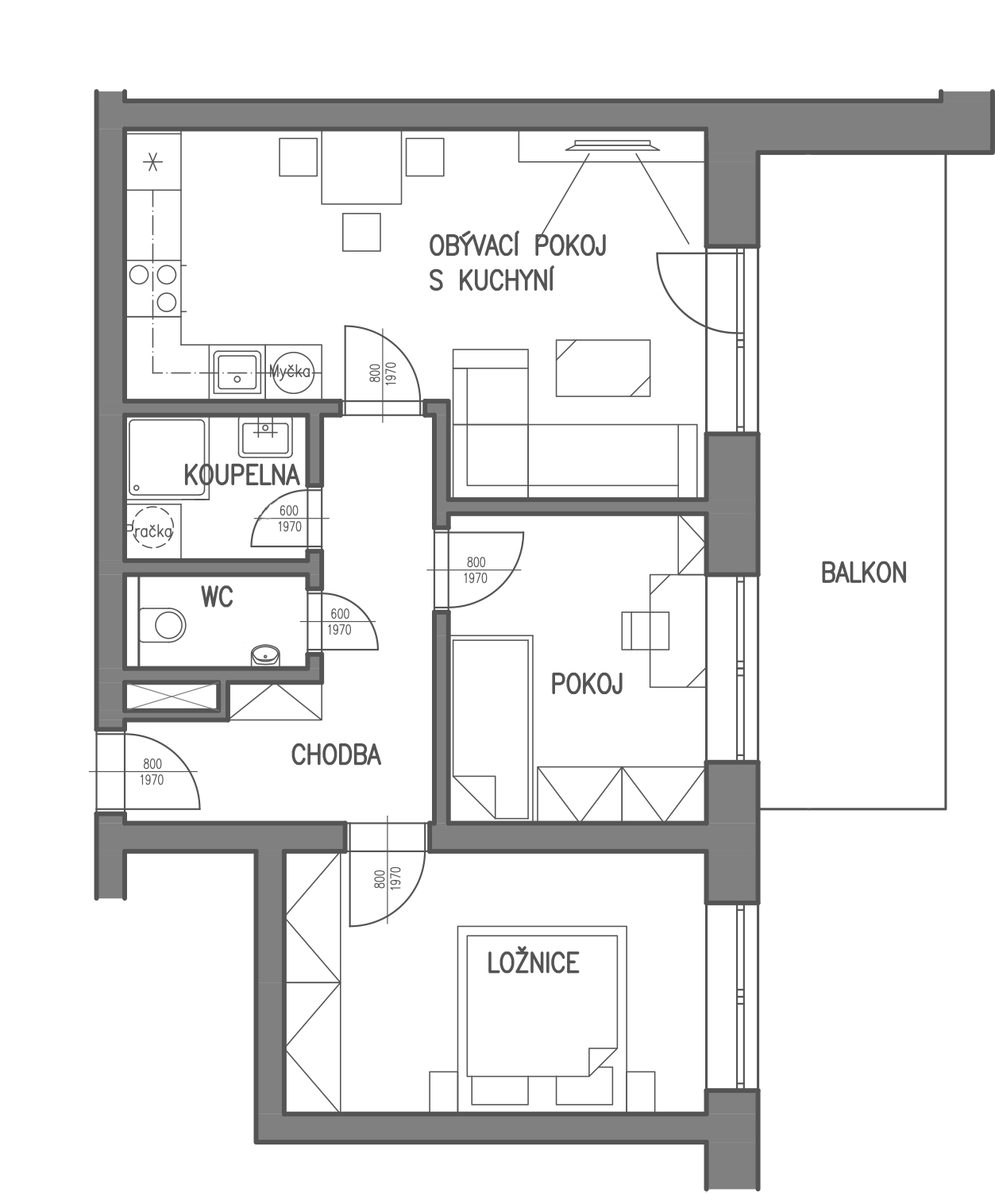
B - Byt 3.05

Rezervováno
3+kk, dům B
Patro
3.NP
Dispozice
3+kk
Podlahová plocha bytu
60,08 m2
Celková prodejní plocha
78 m2
Orientace
JIHOZÁPAD
Stav
Rezervováno
Cena (včetně DPH)
Cena na vyžádání
Legenda místností
Chodba
7,64 m2
Obývací pokoj s kuchyní
21,61 m2
Koupelna
3,05 m2
WC
1,34 m2
Pokoj 1
9,08 m2
Ložnice
17,36 m2
Terasa
14,2 m2
Kóje
3,72 m2
nabidka-nemovitosti/budova-b
Moderní bydlení s luxusem

Zhluboka se nadechněte, jste v Beskydech

Kopce všude, kam jen dohlédnete. V Jablůnce najdete vytoužený klid od městského shonu. Ve vesnici obstaráte to nejnutnější: má poštu, školu, školku, lékárnu i obchod. A zbytek seženete ve Valašském Meziříčí nebo na Vsetíně – každé sice jiným směrem, ale vždycky do deseti minut cesty autem.

nabidka-nemovitosti/test-2
Spojení elegance a klidu

Než se zabydlíte v Jablůnce

Bydlení natrvalo, nebo předchodné útočište na pravidelné výletění? Vyberte si dispozici, která vám bude nejlépe vyhovovat: 1+kk, 2+kk, 3+kk, nebo snad 4kk? Každý dům má navíc balkon nebo pořádně velkou terasu. A přízemní byty mají dokonce předzahrádky. No jen si tu představte ta pohodová odpoledne s knížkou nebo veselé rodinné grilovačky.

Bydlení v Beskydech si zamilujete. 
Rezervujte si svůj byt zavčas

Kontaktujte nás

Filip Hladiš
prodejce projektu
filip.hladis@explicitreality.cz +420 774 110 397
Odesláním formuláře souhlasíte se zpracováním osobních údajů.